
Bo på Kildevang
Ældrecentret Kildevang ligger i udkanten af Langå omgivet af skønne grønne arealer.
Kildevang består af 8 demensboliger, 44 plejeboliger og 6 aflastningspladser.
Kildevang har seks boenheder med plejeboliger (Boenhed A, B, C, D, E og F) og et korttidsafsnit.
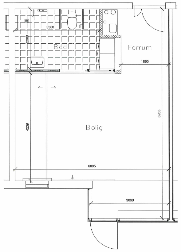
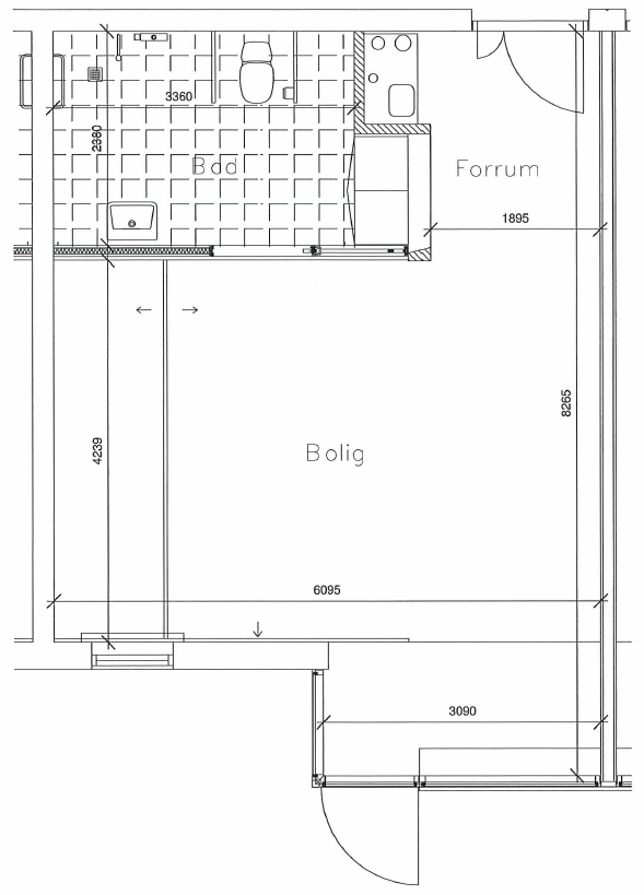
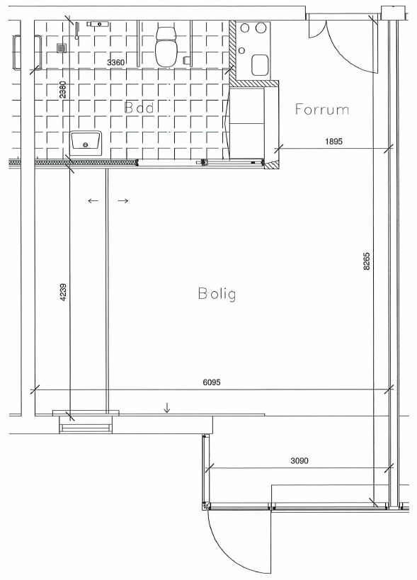
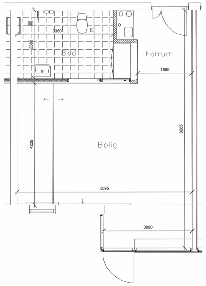
Der er tre typer boliger på Kildevang:
- Type 1 er torumsboliger på 65 m2 (inkl. fællesarealer), som indeholder en stue, et soveværelse, et tekøkken og et badeværelse.
- Type 2 er etrumsboliger på 75 m2 (inkl. fællesarealer), som indeholder en opholdsstue med soveafdeling, et tekøkken og et badeværelse.
- Type 3 er etrumsboliger på 65-75 m2 (inkl. fællesarealer), som indeholder en opholdsstue med soveafdeling, et tekøkken og et badeværelse.
Alle boliger ligger i stueplan og har egen terrasse med udsigt til natur og dyreliv. Der er adgang til have fra hver bolig.














